Startseite

Allgemeine Informationen

Das Gutshaus zu Klein Dammerow liegt im Süden der Mecklenburgischen Seenplatte, etwa zehn Kilometer südwestlich des Städtchens Plau am See, das sich direkt am gleichnamigen Plauer See befindet.
Das Gebäude ist ein ansprechender Ziegelbau aus den Jahren 1892/93, ehemals errichtet als Staatsdomäne, umgeben von einem kleinen Gutspark – seine eigentliche Schönheit offenbart das Gebäude jedoch erst im Inneren.
Das Gutshaus wurde in den neunziger Jahren in sowohl aus denkmalpflegerischer als auch aus bauökologischer Hinsicht vorbildlicher Art und Weise instand gesetzt. Die Wände sind mit Lehmputzen überzogen und mit Kalk-Kasein-Farben gestrichen, die historischen Innentüren wurden restauriert, die historischen Dielen freigelegt und aufgearbeitet. Die meisten Räume sind zudem mit historischen Möbeln ausgestattet, was dem Haus einen zusätzlichen Reiz verleiht.
Das Gutshaus zu Klein Dammerow ist bestens geeignet für Seminare und Bildungsveranstaltungen, in Verbindung mit dem großen Naturreichtum der Mecklenburgischen Landschaft jedoch auch als Gruppenunterkunft für Kinder-, Jugend- und Familienfreizeiten sowie für private Urlaubsaufenthalte.

Beschreibung des Gebäudes und der Räumlichkeiten

Das Gutshaus ist ein vieretagiges Gebäude – im Untergeschoss befinden sich die Küchen und Speiseräume, im Erdgeschoss Seminar- und Tagungsräume sowie ein auch separat als Gästewohnung nutzbarer Bereich, im Obergeschoss und im Dachgeschoss die übrigen Unterkunftsbereiche.

Das Gebäude verfügt über drei Unterkunftsbereiche, die von Gästegruppen sowohl zusammen als auch separat genutzt werden können:
Die Übernachtungsetage im Obergeschoss mit höherem Komfort (19 Betten), ein sowohl gemeinsam mit dem Obergeschoß als auch separat als Gästewohnung nutzbarer Bereich im Erdgeschoss mit vergleichbarem Standard (4 Betten sowie 7 Schlafplätze in Hochbetten) sowie eine einfache, „urige“, aber sehr ordentliche Matratzenunterkunft im neu ausgebauten Dachboden (20 bis 25 Matratzenplätze). Zusätzlich wird im Laufe des Jahres 2015 im Erdgeschoß ein Sechs-Bett-Zimmer zur Verfügung stehen, das je nach Bedarf mit dem einen oder anderen Übernachtungsbereich kombiniert werden kann.
Die Räume im Obergeschoss (vier Vier-Bett-Zimmer, ein Zwei-Bett-Zimmer, ein Ein-Bett-Zimmer) sind geschmackvoll eingerichtet und verfügen – bis auf das Ein-Bett-Zimmer - über Waschbecken und Dusche in den Zimmern.
Dabei bestehen die Vier-Bett-Zimmer jeweils aus einem Hauptraum mit zwei Betten, Schrank, Tisch, Stühlen und den sanitären Anlagen sowie einem sich an diesen anschließenden Nebenraum in der ausgebauten Dachschräge (den sogenannten ehemaligen Abseiten) mit zwei weiteren Betten.
Lediglich im Ein-Bett-Zimmer befindet sich nur das Waschbecken im Zimmer selbst, und die (in der Regel exklusiv für dieses Zimmer zur Verfügung stehende) Dusche ist separat vom Gang aus zugänglich.
Für Übernachtungen im Obergeschoss beträgt der Preis 14 € je Nacht und Person.

Zwei weitere Räume im selben Stil stehen in einer separaten Gästewohnung im Erdgeschoss zur Verfügung, in denen sich jeweils zwei Betten zu 14 € je Person und Nacht sowie jeweils drei bzw. vier Schlafplätze auf einem Hochetagenbett zu 10 € je Person und Nacht befinden. Die Gästewohnung verfügt über ein eigenes Bad mit Wanne sowie eine Küchenzeile.
Wird die Gästewohnung separat, das heißt, nicht in Verbindung mit der Buchung weiterer Betten im übrigen Haus, genutzt, sind pro Nacht mindestens vier Betten sowie zwei Schlafplätze im Hochetagenbett zu zahlen, somit 76 €.

Das gegenwärtig im Ausbau befindliche Sechs-Bett-Zimmer im Erdgeschoß wird nicht über eigene sanitäre Einrichtungen verfügen, jedoch ist eine Toilette mit Waschbecken in direkter Nähe vom Flur aus zu erreichen. Je nachdem, mit welchem der anderen Übernachtungsbereiche das Zimmer kombiniert wird, können die Dusche der benachbarten Gästewohnung, die in der Übernachtungsetage im Obergeschoß (deren eine separat vom Flur aus zugänglich ist) oder die Duschen im Dachgeschoß genutzt werden.
Der Preis für Übernachtungen in diesem Zimmer beträgt 10 € pro Person und Nacht.

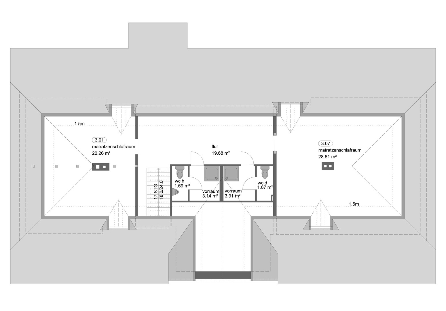
Die Matratzenunterkunft im ausgebauten Dachgeschoss besteht aus zwei großen Räumen jeweils an den Giebelseiten des Hauses mit zwölf (bis maximal fünfzehn) bzw. acht (bis maximal zehn) Matratzen sowie vom dazwischen gelegenen Mittelbereich zugänglichen separaten sanitären Anlagen für beide Geschlechter.
Die historischen Fachwerkwände des Dachgeschosses wurden bis in Kopfhöhe mit Lehmsteinen als Sichtmauerwerk geschlossen, so dass zwei vom Mittelbereich optisch, jedoch nicht akustisch getrennte Räume entstanden sind, und sich der besondere Stil des Hauses – ein sorgsamer und ästhetisch ansprechender Umgang mit der originalen Substanz – auch im Dachgeschoss fortsetzt.
Die Abtrennung der sanitären Anlagen sowohl zum Raum hin als auch untereinander ist in Ständerbauweise ausgeführt.
Der Preis für Übernachtungen im Dachgeschoss beträgt 9 €, für die über die Grundkapazität von zwanzig Matratzen hinausgehenden Personen jeweils 7 €.

Im Untergeschoss stehen zwei voneinander getrennte, jedoch direkt nebeneinander liegende Küchen sowie zwei Speiseräume mit 45 qm bzw. 35 qm Fläche zur Verfügung, von denen der größere in lichten Farben gehalten ist, währenddem der kleinere einen Fußboden aus historischen Ziegelsteinen und ein restauriertes Kappengewölbe aus Backsteinen hat und somit eher eine rustikale Atmosphäre ausstrahlt.
Bei Alleinnutzung des Hauses können alle Räume des Untergeschosses von der Gruppe genutzt werden. Die Tür zwischen den beiden Küchen kann dann geöffnet werden und die größere beispielsweise als Kochküche, die kleinere als Teeküche dienen.
Bei Nutzung des Hauses durch zwei Gruppen können die größere Küche, die mit einem großen Herd in Gastronomiestandard und Mobiliar in Edelstahlausführung ausgestattet ist, sowie der danebengelegene Speiseraum von der Gruppe, die im Obergeschoss beherbergt wird, genutzt werden – die Gruppe, die in der Matratzenunterkunft im Dachgeschoss untergebracht ist, kann den Gewölberaum und die nahebei gelegene kleinere, einfacher ausgestattete Küche nutzen.
Toiletten für beide Geschlechter sowie Lagermöglichkeiten für Lebensmittel komplettieren das Raumprogramm des Untergeschosses.

Im Erdgeschoss sind die Seminar- und Tagungsräume gelegen. Der nach Süden ausgerichtete Doppelraum mit Blick in den Gutspark beeindruckt durch seine Ausgewogenheit in den räumlichen Proportionen ebenso wie durch ihre farbliche Gestaltung und die Ausstattung mit historischem Mobiliar. Der Raum, der durch teilweises Herausnehmen der Zwischenwand aus ehemals zwei Räumen entstanden ist, ist mit seiner Größe von 56 qm für Vorträge und Gesprächsrunden wie für zwanglose Zusammenkünfte gleichermaßen geeignet. Der Raum ist jeweils durch hohe zweiflügelige Türen aus der Erbauungszeit des Hauses mit der Eingangshalle bzw. dem Seminarraum verbunden.
An diesen Raum schließt sich eine auf einer hölzernen Konstruktion stehende, im Fachwerkstil gehaltene historische Veranda an. Die Veranda ist etwa 25 qm groß, nicht heizbar und somit für eine Nutzung im Winter nicht geeignet – durch die Fenster, die auf drei Seiten (Nord, West, Süd) zum Gutspark hinausgehen, ergibt sich jedoch ein sehr ansprechender lichter Raumeindruck, weshalb der Raum für Seminare und Gesprächsrunden ebenfalls sehr gut geeignet ist.
Die Veranda wird künftig zusätzlich über eine hölzerne Außentreppe separat zugänglich sein.
Der von der Eingangshalle aus zugängliche große Seminarraum mit einer Größe von etwa 40 qm ist mit modernem Mobiliar ausgestattet und somit für Seminare und Bildungsveranstaltungen ideal geeignet. Der Seminarraum kann von jeder im Haus herbergenden Gruppe, aber auch für Tagesveranstaltungen Dritter, genutzt werden.
Eine Toilette komplettiert das Raumprogramm auf der Etage und gestattet einen Seminarbetrieb ohne Beeinträchtigung der Unterkunftsetagen.

Reichen die vorhandenen Übernachtungskapazitäten für die eine oder andere Gruppe nicht aus, besteht zusätzlich die Möglichkeit, im Außengelände zu zelten und die Toiletten und Waschbecken im direkt vom Garten her zugänglichen Untergeschoss zu nutzen. Separate Duschen stehen jedoch nicht zur Verfügung, Zeltende müssen – nach vorheriger vertraglicher Regelung – entweder die Duschen im Obergeschoss oder die im Dachgeschoss nutzen.
Nutzt eine Gruppe die Zeltmöglichkeiten nicht ergänzend zu den Übernachtungsmöglichkeiten im Haus, sondern ausschließlich, können, soweit es die Belegung des Hauses erlaubt, zusätzlich die separate Dusche im ersten Obergeschoss sowie der kleinere Speiseraum und die kleinere der beiden Küchen zur Verfügung gestellt werden.
Der Preis für Zeltende als Erweiterung einer im Haus untergebrachten Gruppe beträgt 5 € je Person und Nacht, für Gruppen, die ausschließlich aus Zeltenden bestehen, 7 €.

Für größere Veranstaltungen geeigneten Inhaltes, wie beispielsweise Probenwochenenden von Chören oder Kammermusikensembles, steht die Kirche im vier Kilometer entfernten Nachbarort Retzow zur Verfügung – ein reizvolles, geschmackvoll restauriertes kleines Fachwerkkirchlein inmitten des Dorfangers, die nach Absprache mit der Kirchgemeinde genutzt werden kann.

Organisatorisches

Auf den Betten in allen Unterkunftsbereichen befinden sich frische Bettlaken. Nach Vereinbarung im Belegungsvertrag können Steppdecken und Kopfkissen geliehen und eigene Bettwäsche mitgebracht oder aber Steppdecken, Kopfkissen und Bettwäsche geliehen werden. Alternativ können Schlafsäcke mitgebracht werden.
Sämtliche Preise verstehen sich als Preise für eine Nutzung durch Jugendgruppen, Gruppen gemeinnütziger Träger, gemeinnützige Bildungsveranstaltungen, Mitglieder der NaturFreunde Deutschlands und andere gemeinnützige Gruppen. Bei privater Nutzung wird ein Aufschlag von 15 % sowie entsprechend den gültigen gesetzlichen Regelungen zusätzlich Umsatzsteuer (gegenwärtig in Höhe von 7 %) erhoben.
Um ökologisch bewußtes Verhalten zu unterstützen, wird der Verbrauch an Betriebskosten (Wasser, Abwasser, Heizöl, Elektroenergie) für das jeweilige Gebäude in der Zeit des Aufenthaltes der Gruppe durch Ablesen der Zähler ermittelt und dieser ebenso wie die verbrauchten Festbrennstoffe in Rechnung gestellt. Bei mehreren gleichzeitig anwesenden Gruppen werden die vorgenannten Kosten im Verhältnis der jeweils anwesenden Personenzahlen beider Gruppen umgelegt.

Nach vorheriger Absprache besteht gemäß der Philosophie von Open Houses auch die Möglichkeit, bei der Pflege des Gutsparks mitzuarbeiten. Dabei geht es nicht in jedem Falle um qualifizierte Arbeiten, sondern darum, verbindlich und zuverlässig eine für die Pflege des Geländes notwendige und mit uns abgesprochene Arbeit auszuführen. Gruppen, die an dieser Variante interessiert, sollten uns darauf ansprechen.

Open Houses betreibt das Gutshaus zu Klein Dammerow als Selbstversorgerhaus, bei Bedarf können jedoch sowohl Halbpension als auch Vollverpflegung über örtliche Anbieter zu moderaten Preisen und guter Qualität – zur Beköstigung sowohl im Hause selbst als auch außerhalb – vermittelt werden.

Grundstück

Das Gutshaus ist von einem alten Gutspark umgeben, der allmählich in die offene Landschaft übergeht. Das Grundstück hat eine Größe von fast 20.000 Quadratmetern und steht den Gästegruppen uneingeschränkt zur Verfügung.
Im Park befindet sich eine vor wenigen Jahren in Lehmbauweise errichtete Hütte in experimenteller Formensprache, die bei Regen einer Runde von etwa 12 Personen angenehm Platz bietet. Unweit davon ist der Lagerfeuerplatz gelegen, am Grundstücksrand schließt sich eine Wiese mit Volleyballnetz und Fußballtoren an.

An- und Abreise

Wer das Gutshaus Klein Dammerow mit dem öffentlichen Nahverkehr erreichen möchte, kommt zunächst recht einfach bis nach Meyenburg. Die Prignitzer Eisenbahngesellschaft betreibt dort einen regelmäßig verkehrenden und bis nach Berlin vertakteten Nahverkehr, der zu den Konditionen der Deutschen Bahn (incl. Bahncard, Berlin-Brandenburg-Ticket etc.) genutzt werden kann.
Vor Meyenburg kann man mit dem Bus über Ganzlin nach Klein Dammerow gelangen, allerdings fahren die Busse nur einige Male täglich, und die Umstiege in Ganzlin sind den Busfahrplänen nicht auf den ersten Blick zu entnehmen.
Wer ein Fahrrad bei sich führt, kann auch den sehr schönen Weg direkt von Meyenburg durch den Wald nach Klein Dammerow (11 km) nehmen.
Alternativ kann man mit dem Zug bis Lübz fahren und von dort den Bus direkt nach Klein Dammerow nehmen, der mehrmals täglich verkehrt.
In den nächsten Jahren, möglicherweise bereits ab 2016, ist die Wiederinbetriebnahme des Eisenbahn-Streckenabschnitts Meyenburg – Ganzlin – Plau am See vorgesehen, wodurch sich die Verkehrsanbindung deutlich verbessern würde.
Mit dem Auto ist das Gutshaus Klein Dammerow sehr schnell über die Autobahnen Berlin – Hamburg (Abfahrt Meyenburg) und Berlin – Rostock (Abfahrt Röbel / Plau am See) zu erreichen. Beide sind weitgehend staufrei.
Die Anreise kann am Anreisetag ab 17.00 Uhr erfolgen. Kann die gesamte Gruppe nicht anreisen, so muß ein Verantwortlicher spätestens bis 19.00 Uhr anreisen, um die Schlüssel in Empfang zu nehmen.
Die Rückgabe der Schlüssel und die Übergabe des Gebäudes müssen am Abreisetag nach Reinigung der Räume bis 11.00 Uhr direkt an den von Open Houses Beauftragten erfolgen.
Frühere Anreise und spätere Abreise können im Belegungsvertrag gegen Aufpreis vereinbart werden.

Umgebung

Das Gutshaus Klein Dammerow liegt in einer ländlichen Gegend, die jedoch, auf die recht dünne Besiedlung des Landstrichs bezogen, über eine auffallend große Anzahl interessanter Ausflugsziele verfügt.
Das ideale Verkehrsmittel für die nächste Umgebung ist das Fahrrad, zumal die ehemaligen Landwege zumeist asphaltiert sind und nur ein geringes Verkehrsaufkommen haben. Für weitere Strecken bietet sich das Auto an, da Busverkehr nur einige Male am Tage besteht.
Fast direkt an den Gutspark schließt sich ein großes Naturschutzgebiet an, das ausgedehnte Spaziergänge und Naturbeobachtungen ermöglicht.
Mit dem Fahrrad kann man in östlicher Richtung in etwa drei Kilometern Retzow erreichen, wo sich neben dem bereits erwähnten Fachwerkkirchlein die Filzmanufaktur „Ülepüle“ befindet, die sowohl die Möglichkeit zu Filzkursen als auch zum Erwerb künstlerisch ansprechender Filzprodukte bietet.

In nördlicher Richtung befindet sich in etwa sechs Kilometern Wangelin mit dem „Wangeliner Garten“, dem größten Kräutergarten Norddeutschlands, in dem zudem interessante Veranstaltungen zu Gartenbau, Naturschutz und Landschaftspflege stattfinden.
Benachbart liegt der Ort Gnevsdorf (7 km) mit dem „Deutschen Lehmmuseum“, das, in einem alten Bauernhaus untergebracht, in beeindruckender Weise Einblick in historische und moderne Lehmbautechniken in Mecklenburg, in anderen Teilen Deutschlands, aber sogar auch auf anderen Kontinenten, gibt.
Etwas weiter entfernt liegt in nordwestlicher Richtung die ehemalige Ziegelei Benzin (9 km), die als Schauanlage zugänglich ist.
Klein Dammerow liegt inmitten des Städtedreiecks Meyenburg - Plau am See – Lübz. Die historische Ausrichtung war stets nach Plau am See gegeben, die administrative zu DDR-Zeiten nach Lübz und die heutige infrastrukturelle wegen der Autobahn, der Bahnanbindung und der am Klein Dammerow zugewandten Ortseingang gelegenen Einkaufsmöglichkeiten ebenso nach Meyenburg.
Meyenburg, 11km entfernt, ist ein Ackerbürgerstädtchen noch auf brandenburgischer Seite, jedoch direkt vor der Landesgrenze. Der zunehmende Wegzug der Bevölkerung ist ein ernstes Problem, jedoch hat der Ort mit dem seit wenigen Jahren im ehemaligen Schloß beheimateten Modemuseum, das auf jeden Fall einen Besuch wert ist, einen neuen interessanten Anziehungspunkt erhalten.
Plau am See, 14 km entfernt, ist ein weitgehend original erhaltenes Städtchen mit imposanter Stadtkirche in den Formen der Backsteingotik und Resten der ehemaligen Burg sowie einer recht geschlossenen Bebauung auf dem historischen mittelalterlichen Grundriß, die vorwiegend aus dem 18. Jahrhundert stammen dürfte. Einen besonderen Reiz gewinnt das Städtchen durch die Lage direkt an der Elde und am Plauer See, was der Stadt durch den Hafen und die historische Hubbrücke teilweise gar ein etwas südlländisches Flair verleiht. Bereits im ausgehenden 19. Jahrhundert war Plau am See eine beliebte Sommerfrische für die Berliner.
Lübz, 15 km entfernt, schließlich war als Nebenresidenz der Schweriner Bischöfe im Mittelalter von großer Bedeutung, die Entwicklung stagnierte jedoch nach der Reformation weitgehend. Zu DDR-Zeiten eine der kleinsten Kreisstädte des Landes, waren mit dem Verlust dieser Funktion im Jahre 1994 die strukturellen Veränderungen in den ländlichen Gebieten Ostdeutschlands hier noch gravierender als andernorts. In reizvollen Straßenzügen mit Fachwerkhäusern aus dem 17. bis 19. Jahrhundert steht stellenweise jedes zweite Häuschen zum Verkauf – andererseits hat das Zentrum des Ortes mit Burg, Hubbrücke über die Elde, einer in sehr geschmackvoller Weise zur Sparkasse umgebauten ehemaligen Wassermühle und insbesondere dem Komplex um die Stadtkirche bis heute seine stimmungsvolle Atmosphäre bewahrt.
In dem vorstehend eher unter landschaftshistorischen und kunstgeschichtlichen Aspekten beschriebenen und mit dem Fahrrad erkundbaren Radius von etwa zwanzig Kilometern um das Gutshaus Klein Dammerow befinden sich naturgemäß auch zahlreiche rein touristische Angebote wie Kletterpark, Bärengehege, Kanuverleihe etc., die hier, um den Rahmen nicht zu sprengen, im Einzelnen nicht aufgeführt werden sollen.
Wer die Möglichkeit hat, mit dem Auto (oder von Lübz aus auch mit der Bahn) Mecklenburg auch über diesen Radius hinaus zu erkunden, dem sei neben den bekannten Zielen wie der ehemaligen Residenzstadt Schwerin, der Universitätsstadt Rostock und der Ostseeküste insbesondere die alte Bischofs- und Residenzstadt Güstrow empfohlen, in der sich historische Baudenkmale und die umgebende Landschaft vermischen und jahrhundertelange Traditionen, künstlerische Entwicklungen des 20. Jahrhunderts (Ernst Barlach, Uwe Johnson und andere) sowie ambitionierte Pläne für eine zeitgemäße und nachhaltige Stadtentwicklung einander in beeindruckender Weise anregen.
Belegungsanfrage per email

Anmeldeformular / Belegungsvertrag

Belegungsvertrag für Gäste(gruppen) Gutshaus Klein Dammerow



Hauptansicht

Seitenansicht mit Veranda

Gartenansicht

Raumfolge im Erdgeschoß

Unterkunftsraum

Unterkunftsraum

Unterkunftsraum

Diele

Treppenhaus

Erdgeschoß - Gruppenraum

Erdgeschoß - Gruppenraum

Erdgeschoß - Gruppenraum

Erdgeschoß - Veranda

Erdgeschoß - Veranda

Erdgeschoß - Veranda

Erdgeschoß - Seminarraum

Untergeschoß - Speiseraum

Untergeschoß

Erdgeschoß

Obergeschoß

Dachgeschoß

Außengelände

Backofen am Haus

Gutspark

Weg zur Lagerfeuerstelle

Umgebung
 







KONTAKT KARTE DER PROJEKTORTE NETZWERKE & PARTNER SPENDER & FÖRDERER IMPRESSUM